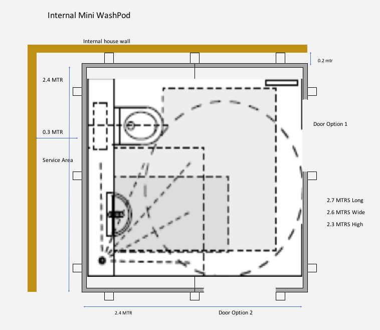
The Standard WashPod has recently been designed as an alternative internal model that will suit more people with smaller spaces. It is still wheelchair accessible and can include hoist options but it is presented in a more compact design with dimensions of 2.7m long x 2.6m wide x 2.3m high.

